- Rupture de stock




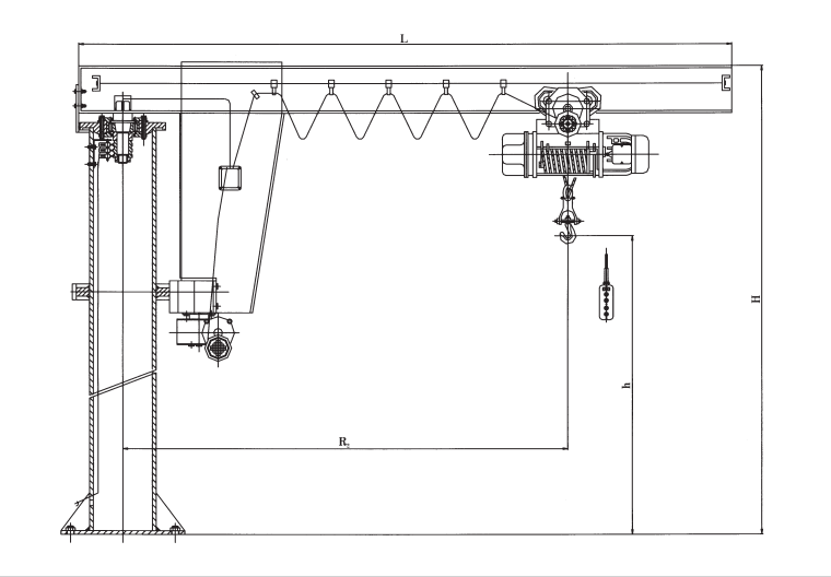
Notre potence rotative a une capacité de levage allant jusqu'à 5 000 kg et le mouvement de rotation de la flèche peut atteindre une rotation de 360 degrés. Cette potence est fixée sur le sol en béton et le palan de levage peut être un palan à chaîne ou un palan à câble.
En savoir plusLa potence pour poste de travail est un équipement de levage léger d'une capacité de 0,25 à 5 t. Il présente des caractéristiques de structure unique, de fonctionnement sûr et fiable, de rendement élevé, d'économie d'énergie, de gain de temps, d'économie d'efforts et de flexibilité. Il peut être utilisé dans un environnement tridimensionnel.
La potence pour poste de travail est supérieur dans les cas de levage concentré à courte distance.
La potence de poste de travail peut être utilisée dans les chaînes de production, les chaînes de montage et les machines-outils dans les usines, les mines et les ateliers, ainsi que dans les entrepôts, les quais, etc.
La potence de poste de travail est composée d'une colonne/pilier, d'un dispositif d'orientation, d'un bras de flèche et d'un palan électrique, etc. L'extrémité inférieure de la colonne est fixée sur le sol en béton et le bras oscillant tourne selon l'utilisateur.